MESENZANA - Centro "La Filanda"

Panoramica

Tipo di Contratto: 
Vendita
Tipologia: 
Location: 
Mesenzana

Descrizione

PREZZI VERAMENTE INTERESSANTI

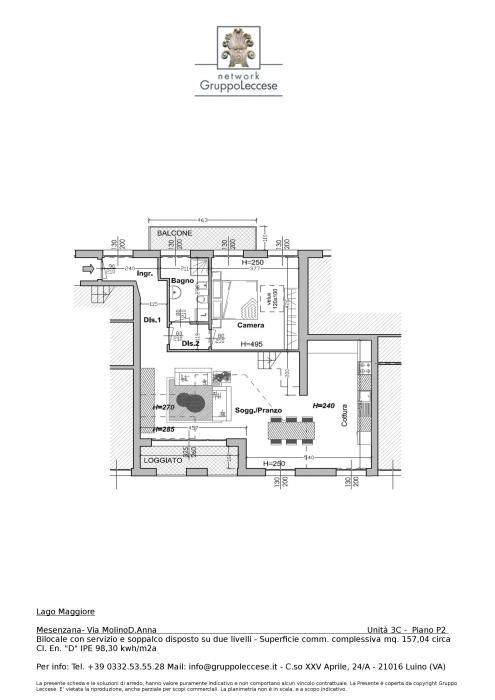
ULTIMI BILOCALI E TRILOCALI CON SOPPALCO - TERMOAUTONOMI

GARAGE E POSTI AUTO

------------------------- chiama 0332 535528 ------------------------------------

In una cornice storico-produttiva ricca di colori e natura, immerso nel verde della Valtravaglia nasce il nuovo centro commerciale e residenziale "La Filanda", ambizioso progetto di archeologia industriale, che vede il recupero di  un vecchio stabile destinato alla filatura, risalente al 1853, impiantato in localita' Molino D'Anna da Carlo Decauville.
Oggi dalla ristrutturazione del vecchio opificio nascera' una nuova realta' residenziale e commerciale, caratterizzata da un'architettura armoniosa ed elegante che andra' ad integrarsi con l'ambiente naturale circostante.

Immersa nel verde della Valtravaglia, dalla trasformazione e recupero di una Vecchia Filanda e' oggi un "moderno borgo", che rispetta l'equilibrio tra le esigenze piu' attuali di  praticita'  - comfort e del vivere in un ambiente a misura d'uomo.

L'ubicazione nel comune di Mesenzana (VA) e' un pregio da non sottovalutare, vista la distanza di soli 15 Km da Varese e la vicinanza a importanti centri di servizi e turistici come Luino e Ponte Tresa e dal punto di vista della comunicazione ha il vantaggio di trovarsi in un territorio poco frenetico e caotico.

La Filanda è un progetto del 2005 che ha sviluppa i canoni piu' avanzati di costruzione, garantendo alla realizzazione spazi dinamici e pratici.
Si tratta di un complesso che puo' soddisfare le piu' qualificate richieste abitative, commerciali e del terziario.
Anche questo progetto prevede la possibilita' di studi personalizzati sulla base delle richieste del cliente sia con riguardo alla scelta delle finiture e delle divisioni interne alle unita', sia con riferimento ai piani di pagamento.

Il complesso residenziale e' composto da appartamenti e porzioni di casa di varie tipologie e metrature, con parco privato e giardini di proprieta', forniti di ascensori interni ed esterni che collegano le unita' immobiliari direttamente con i garage. 
Il complesso Commerciale comprende aree commerciali interne ed esterne di varie metrature con la possibilita' di soluzioni personalizzate. Il centro La Filanda si sviluppa su 3 livelli con una superficie di oltre 2500 mq, sono previste aree attrezzate quali: la corte interna, la piazzetta e molte altre soluzioni come aree di uso pubblico e la possibilita' di centri o strutture sportive e culturali.
    

Mappa