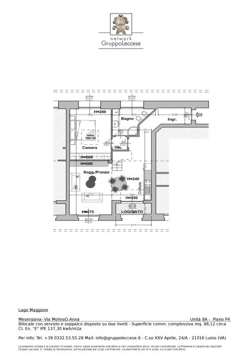
Panoramica Descrizione per informazioni Tel. (+39) 0332 535528 - info@gruppoleccese.it Allegati: Scarica Planimetria Vecchia Filanda U 8A.pdf